Simpsons properties are always amazing and generally in stunning locations. We stayed in two villas in Turkey, both very different, but both had lovely views. The one in Akyaka was very rural and unique and our concierge Sophie couldn’t do enough for..."

Another fabulous holiday with Simpson at Villa Sezin. Such a tranquil place. The villa is a haven. See you in 2026!"

Villa Sezin was exactly as described on the Simpson website - complete with breathtaking sunsets! I could not recommend traveling with Simpson's more - their attention to detail is fantastic. The Concierge service was outstanding - Zeze helped curate..."

Read more reviews
At a glance
  • Sleeps 4
  • 2 bedrooms
  • 2 bathrooms
  • Free WiFi
  • Air conditioning
  • Swimming pool
Property highlights
  • Exceptional modern villa
  • Stunning views of Patara
  • Stylish interiors
  • Heated pool
  • Walking distance to village and restaurants
More details

Book now for 2026... Enjoy early bird prices when you book by 31 December. Even better, we've reduced accommodation deposits from 25% to 15%, with no additional deposit required when your package includes British Airways or selected Easyjet flights.
Prices not yet showing for your dates? Reserve today with a fully refundable deposit.

For visitors who want to experience real village life without skimping on comfort, this stunning new property overlooking Patara beach presents an ideal solution for a couple, friends or a smaller family. Villa Sezin sits in a cluster of village houses yet retains complete privacy on its beautiful pool terrace, complete with far-reaching views to the coast.

For visitors who want to experience real village life without skimping on comfort, this stunning new property overlooking Patara beach presents an ideal solution for a couple, friends or a smaller family. Villa Sezin sits in a cluster of village houses yet retains complete privacy on its beautiful pool terrace, complete with far-reaching views to the coast.

The house is luxuriously appointed for a wellness-themed break, with an outdoor Jacuzzi, heated swimming pool and a full Turkish bath as part of the en-suite to the master bedroom. The views from both guest rooms are exceptional, with sliding glass doors framing the brilliant blue of the sea, sky and pool. Sunsets are particularly impressive from this elevated position, the perfect prelude to dinner on the terrace or a leisurely stroll into Üzümlü.

For all the glamour of Villa Sezin, Üzümlü village is an authentic and exceptionally friendly place, with four restaurants within walking distance along a tree-lined path. The welcome here is typically Turkish and totally genuine, a refreshing reminder that there are still places in the world where strangers are greeted as friends. And if you feel you need to up the very relaxed pace a little, cosmopolitan Kalkan is just a ten-minute drive, whilst the vast beach and intriguing ruins of Patara are less than 20-minutes away.

Looking for 10 nights..? Why not add a 3-night stay in a boutique hotel to your villa holiday. To find out more, view our 10-night holidays in Turkey.


Explore our pre-bookable experiences in Islamlar & Üzümlü


Show Flight Details
Flight Details
Easyjet
LGW
London Gatwick
DLM
Dalaman
EZY8569
14:00 20:10
03/05/26
DLM
Dalaman
LGW
London Gatwick
EZY8590
14:50 17:15
10/05/26

Alternative flight options can be selected during the booking process.

Close

Villa barbecues
Many of our villas have a barbecue provided. However, use of barbecues may be restricted or prohibited during the main summer season in order to comply with local regulations.

Grading

Property Grading Key:

  • 5/5

    Excellent

  • 4/5

    Very good

  • 3/5

    Good

Close
  • Location

    4.5/5

  • Comfort

    4.5/5

  • Facilities*

    4.5/5

  • Proximity to beaches, restaurants and shops*

    4.5/5

Overall

4.5/5

* For further clarification on Facilities and Amenities, please view the 'Details' tab for each property or speak to one of our experienced sales consultants.

Accommodation

Layout

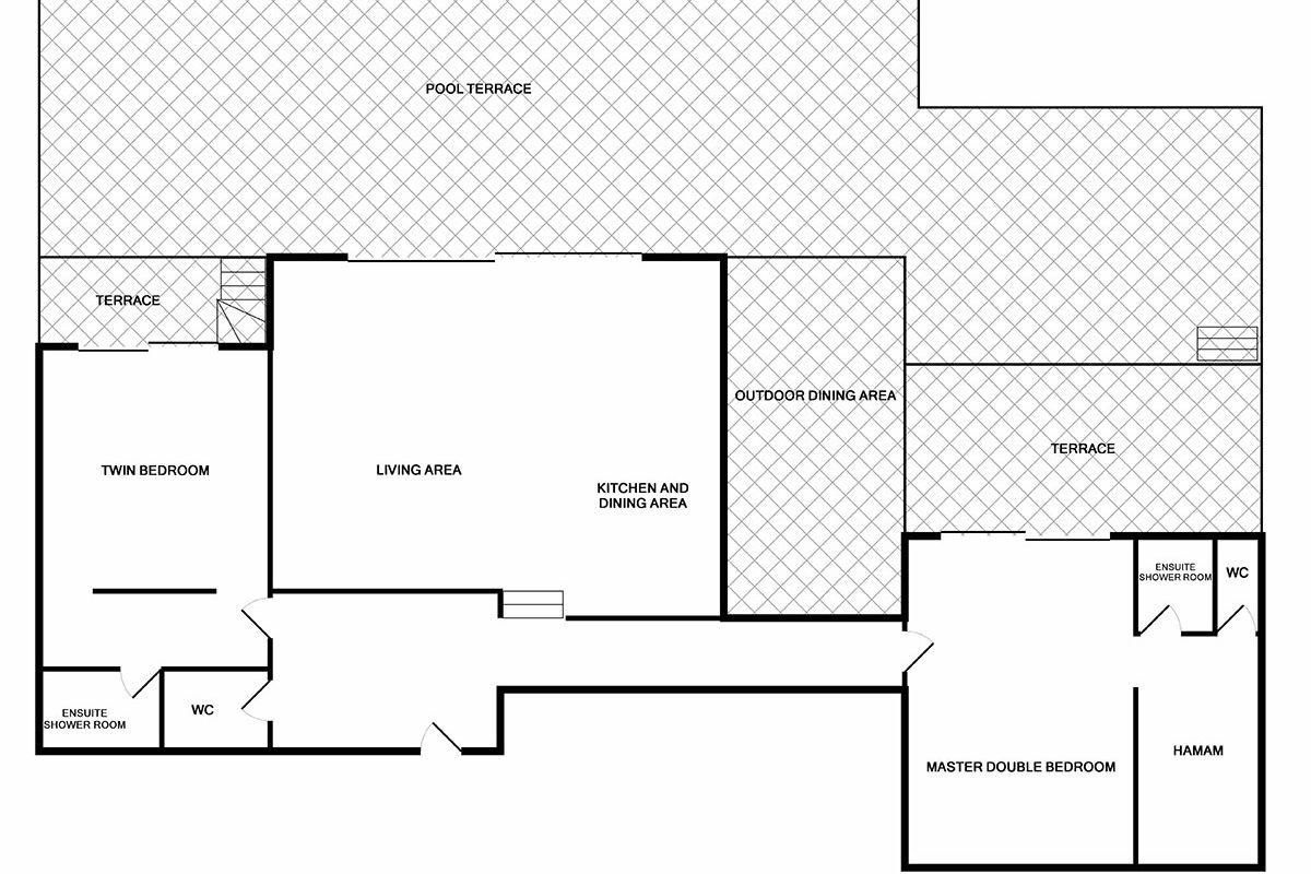
  • 2 bedroom single storey villa (sleeps 2-4)
  • Open-plan living/dining/kitchen area with Smart TV, leads to pool terrace
  • Kitchen with oven, hob, microwave, fridge-freezer, dishwasher, Nespresso machine
  • Master double bedroom (190cm x 190cm bed) with en-suite open shower room with enclosed WC and Jacuzzi and feature (non-operational) hamam, opens to patio with Jacuzzi and steps down to pool terrace
  • Twin bedroom (90cm x 190cm beds) with en-suite shower room, leads to private terrace then down to pool terrace
  • Washing machine
  • WC

General

  • Complimentary WiFi
  • Air-conditioned throughout
  • Iron, ironing board, hairdryer, pool and bath towels provided
  • Barbecue
  • Outside shaded dining area with corner seating
  • Outside Jacuzzi
  • Infinity swimming pool 3.5m x 8m (depth 1.5m throughout) with ladder access, heated to 29°C for May and October
  • 9 steps down to front door
  • 4 steps down from landing to kitchen/living room area
  • The villa is surrounded by pine forest, with sea views to the front 
  • Optional meze delivery service

W​iFi

  • All properties with WiFi are able to support basic functionality such as web browsing and checking emails*

* We aim to offer an uninterrupted service but sometimes due to factors beyond our control reliability can be affected.


Location

  • Restaurant 15min downhill walk (900m), uphill return journey takes longer
  • Village centre (Üzümlü), shop and grocers 15min walk (900m) 
  • Kalkan (restaurants/shops/beach clubs) 15min drive
  • Patara beach 25min drive
  • Dalaman airport 1hr 45min drive

Car hire

Car options

When you book a flight-inclusive package holiday, the following hire car(s) are included in the price of your holiday:

  • 2-4 guests – 1 Group B, Fiat Egea or similar*

* All our cars include full comprehensive insurance with zero excess. For this particular destination, the undercarriage, tyres and windscreen are excluded from the cover.

Car specifications

Group B – 1.3 litre petrol engine, 2 large and 2 medium suitcases*

The following cars are available as alternatives on request (supplements apply). Please call our travel specialists for details.

Group D – Dacia Duster or similar, 1.5 litre diesel engine, 3 large and 2 medium suitcases*

Group F – Automatic Fiat Egea or similar, 1.6 litre petrol engine, 2 large and 2 medium suitcases*

Group A – Automatic Ford Kuga SUV or similar, 1.6 litre diesel engine, 3 large and 1 medium suitcases*

Group C – Automatic Citroen C4 SUV or similar, 1.5 litre diesel engine, 2 large and 1 medium suitcases*

Group E – Automatic Ford Custom 8+1 seater or similar, 1.6 litre diesel engine, 3 large and 4 medium suitcases*

* Suitcase sizes are based on a large suitcase being approximately 75cm x 45cm x 23cm and a medium suitcase of approximately 60cm x 40cm x 23cm.

A pretty mountain village just above Kalkan Bay, Islamlar is a place of bucolic tranquillity and rustic architecture set against the dramatic backdrop of the Taurus Mountains. In the heart of Islamlar you will still find a truly traditional way of life, unchanged throughout the centuries: an old tea house, a bakery where flour is still ground by millstones and shepherds herding their sheep among the olive trees.

Nearby is Islamlar’s even sleepier neighbour, Üzümlü. This traditional village is wonderfully unspoilt – a place where you can fully immerse yourself in the every-day comings and goings of rural Turkey. 

But should you wish to experience a more cosmopolitan expression of Turkish hospitality, Kalkan with its beach clubs, vibrant waterfront bars and rooftop restaurants, is just a short drive away, giving you the best of all worlds.

To complete the picture, visit our handpicked selection of lovely villas in Islamlar & Üzümlü.


Explore our pre-bookable experiences in Islamlar & Üzümlü


 

Location

    • Restaurant 15min downhill walk (900m), uphill return journey takes longer
    • Village centre (Üzümlü), shop and grocers 15min walk (900m) 
    • Kalkan (restaurants/shops/beach clubs) 15min drive
    • Patara beach 25min drive
    • Dalaman airport 1hr 45min drive

View holiday Booking Information

Total: £2,076

Customer testimonials

Simpsons properties are always amazing and generally in stunning locations. We stayed in two villas in Turkey, both very different, but both had lovely views. The one in Akyaka was very rural and unique and our concierge Sophie couldn’t do enough for us. The same was true of Lauren our concierge in the second villa in Uzumlu, which was more modern and spacious. Service throughout was excellent. We will be booking again.

Mrs Kim Williams October 2025

Another fabulous holiday with Simpson at Villa Sezin. Such a tranquil place. The villa is a haven. See you in 2026!

Eric and Kathleen June 2025

Villa Sezin was exactly as described on the Simpson website - complete with breathtaking sunsets! I could not recommend traveling with Simpson's more - their attention to detail is fantastic. The Concierge service was outstanding - Zeze helped curate our holiday to match exactly what we were looking for - day boat trips, restaurants, activities and she was always happy to help. Gorgeous holiday - will be booking again!

Ms Audrey Cox August 2024

We have been on many villa holidays but this was our first with Simpson. Starting with booking, then pre holiday info, ease of car hire and proactive/helpful (but not intrusive) local rep and lovely villa this was a first class experience. We will almost certainly use Simpson again.

Mr Jeremy Lees June 2024

A beautiful villa with incredible views over the ocean and towards the mountains. Well equipped with everything we needed. If there's something you need and it's not there just ask and Zeze the rep will sort it for you if within her means. The pool was an absolute winner. Big enough to have a proper swim and the temperature was ideal. The reason it has that view is its position so be aware that its quite a steep walk down to the village - more so coming back!! Yes there were a few signs of wear and tear but I think that's to be expected as photos always make a place look pristine. It certainly didn't affect our holiday. We found Kalkan to be more than a ten minute drive but we took our time on the very twisty roads unlike the locals who obviously know every twist and turn! This was our first time booking with Simpson but the efficiency of the transfers and the bonus of having someone like Zeze available if you need assistance has converted us. Thanks to all who made it possible - already looking at a September holiday.

Ms Glenda Thomas May 2024

Our first time in Turkey was wonderful due to Simpson Travel's attention to detail. The villa was brilliant, exceptionally clean and welcoming. The pool person spent quite some time each morning making sure the lounge area and pool were perfectly clean and tidy. Simpson's welcome pack had everything we needed to start our holiday. We had pre-ordered a meze for the first evening and it was super. Just what we needed after a long journey. The surrounding area was stunning, our sunset view was perfect. Lovely area, lovely friendly people, super villa and pool. We could not have asked for more.

Mr Eric Harrison May 2024

What a relaxing week here at the villa. Stayed relatively local but Palora beach and ruins well worth a vsit. ZeZe very helpful and fixed all our little mishaps. Thanks for everything ZeZe.

Ro May 2024

Very enjoyable, peaceful and relaxing. Much appreciated friendly helpfulness from ZeZe and the poolman/bread deliverer.

Eden-Green family May 2024

Very sad that it’s our last day as we have had an amazing and enjoyable time. Not only because of the beautiful facilities at the villa but also the great experiences of being within the friendly local village community. Zeze (Simpson’s rep) was superb. Very knowledgeable and helpful. Typical of the Simpson experience. We’ve used them for the past 5-6 years – never disappointed.

Paul and Bernie October 2023

As with previous holidays with Simpson Travel, the service from start to finish was first class. Everything went like clockwork and all of the staff that we came into contact with were extremely friendly and helpful. We will certainly be booking with ST again.

Mr Paul Ireland October 2023

Our end of season Villa holiday in Turkey was perfect for us - warm, peaceful and relaxing. We particularly loved the heated infinity pool! Thank you Simpson Travel.

Mrs Louise Hobbs October 2023

Amazing family holiday. Zeze was extremely helpful and so friendly. We enjoyed the village restaurants. Wanted to stay longer. Thank you

Mrs Lesley Baldwin August 2023

A very hot two weeks but kept lovely and cool with the pool and air con. Zeze was brilliant with recommendations and booking things for us – restaurants and taxis. Thank you to the owner and cleaners for a splendid holiday.

The Stocks family July 2023

Customer feedback Wonderful Villa impressive Pool and lovely view , everything you need for a relaxing peaceful holiday. Zeze was wonderful so helpful and remembered us from a few years ago. She was always responsive and pleasant to deal with.

Sarah Melbourn August 2022

A short but sweet stay. We have definitely made the most of our visit. With pool days, Indigo Beach club days (the best food) and trips out to the ruins at Xanthos. gorge walking at Saklikent and finishing at Patara beach at sunset. The sunsets from the villa were amazing too and it was lovely to have the facilities there, the barbecue worked a treat. This is our first holiday with Simpsons and it won't be our last. The service at home and in Turkey has been great.

The Wilsons July 2022

What a wonderful holiday. The villa has been wonderful in every respect. We've spent a lot of time just relaxing by the pool, but also boat trips, a trip to Kas, Saklikent gorge (rafting and exploring the canyon) Letoon, Patara... This is our first Simpson holiday but it certainly won't be our last. The service has been exceptional from beginning to end. Thank you to everyone for enabling us to have such a special time.

The Glanvilles July 2022

A fantastic 2 weeks at Villa Sezin. The villa has been wonderful, placed above the busy centre of Kalkan with slight relief from the record temperatures. After the first few days of relaxation we found our adventurous side and have done some great trips. We found it easy to get down to the D400 main road from Dalaman, and venture east and west.

Harrison family July 2022

Villa Sezin is an amazing villa set in a tranquil location away from the crowds. We absolutely love it. The villa itself is modern, spacious and of a high standard overall. The pool and views are exceptional. It’s the most amazing location if you are seeking ‘off the beaten track’ for your holiday. Nothing could be nicer than early evening watching the sun setting with a glass of wine observing swifts high in the sky, followed by bats circling and the occasional hoot of an owl. This is experiencing the less commercial Turkey with simple food and being amongst the local Turkish people. In our view the best of both worlds ; excellent accommodation, great views in an uncommercial setting. Can’t wait to return.

Christine Andrews June 2022

Wonderful week in peaceful rural location . Lovely , spacious, well appointed villa with great caretaker couple who cared for us without intruding on our privacy. Able to dip into nightlife of Kalkan easily with great service by local taxi driver.

Tina King May 2022

Very comfortable villa, well equipped, great pool. Excellent domestic staff. We think a little TLC in the villa is needed. Zeze, our concierge, was just lovely and did all that we asked of her. She was so kind. It has been a good holiday and we hope to have many more with Simpson, an ace firm.

Helen Waterworth September 2020

Villa and accommodation exceptional, very quiet, to a high standard and delightfully restful. We would thoroughly recommend this villa. The surrounding area is truly rural Turkey. We would certainly visit again.

Chris & Chrissy Andrews September 2019

We had a great time at Villa Sezin. Everything lived up to our expectations. Olivia was very helpful and informative. We loved the area and the villa.

Debbie August 2019

Booked within two weeks of departure yet still the same excellent service and high standards from Simpson Travel. Efficient, responsive service from pre-departure team meant everything went smoothly including inflight requests. Fabulous holiday experience which reaffirmed Simpson Travel as first class operator. Ms.

Marshall August 2019

Villa Sezin was exactly as shown on the website. It was extremely clean and kept so by the excellent service from the poolman and the two lovely cleaners.

Sarah Allen June 2019

Why choose Simpson Travel