At a glance
- Sleeps 6
- 3 bedrooms
- 2 bathrooms
- Free WiFi
- Air conditioning
- Swimming pool
Property highlights
- Charming character house
- Beautiful countryside setting
- Peaceful and private
- Additional 1-bedroom guest cottage
- Delightful garden
- Beach 7min drive
The rugged interior of north east Zakynthos is magnificently unspoilt, so we are extra pleased to have found this wonderful, secluded villa near Volimes. It’s a charming and peaceful location, surrounded by olive trees and landscaped gardens, yet just a seven-minute drive from the coast. Approaching along the private drive you get a sense of slipping back in time, and with good reason; the villa’s guest cottage originally belonged to the owner’s grandparents and the olive grove around the main house dates back even further. Solid stone walls, beamed ceilings and arched picture windows all speak to a respect for architectural tradition, polished up to welcome 21st C guests looking for both authenticity and comfort.
In addition to the main, two-bedroom house, there’s a detached guest cottage with its own bedroom, shower room and living area, making this a really practical layout for two couples or a multi-generation party looking for a little extra privacy. The outside space is equally well designed, with lots of natural shade from the trees, plenty of seating and dining space and outdoor lighting which makes the garden even more magical at night. You can barbecue right here, enjoying the sounds of nature and the luxury of seclusion, or for a change of scene you’ll find beaches, boat hire and a choice of excellent local tavernas all within a 10 to 15-minute drive.
Jump to
Tourist tax
In Greece, a tourist tax may apply at your accommodation which will be payable locally, in cash, during the course of your holiday. Please use the link to view details specific to your accommodation. View tourist tax rates here.
Villa barbecues
Many of our villas in Greece have a barbecue provided. However, use of barbecues may be restricted or prohibited during the main summer season in order to comply with local regulations.
* For further clarification on Facilities and Amenities, please view the 'Details' tab for each property or speak to one of our experienced sales consultants.
Accommodation
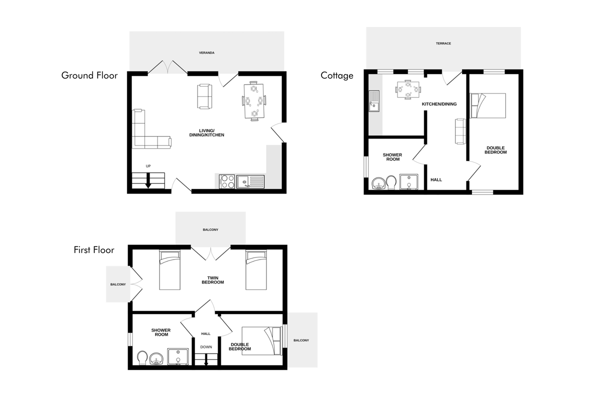
Layout
- 3 bedroom villa (sleeps 2-6)
Ground floor
- Open plan kitchen/living/dining area; leads to terrace
- Kitchen includes dishwasher, washing machine, fridge-freezer, microwave, oven, hob, coffee maker
- Living room with Smart TV
Upper floor
- Double bedroom (160cm bed) with balcony
- Twin bedroom (2x90cm beds) with balcony
- Shower room with WC
Guest cottage
- Double bedroom (160cm bed) with terrace
- Shower room with WC
- Kitchenette and separate living area
General
- Complimentary wifi
- Air-conditioned throughout
- Washing machine
- Iron, ironing board, hairdryer, pool and bath towels provided
- Charcoal barbecue
- Chlorine swimming pool 8m x 4m (1.15m - 1.45m depth)
- Shaded outdoor dining area
- Twice weekly cleaning and linen change
Wifi
- All properties with wifi are able to support basic functionality such as web browsing and checking emails. We aim to offer an uninterrupted service but sometimes due to factors beyond our control reliability can be affected.
Property registration number(AMA): 00000588496
Simpson family extras
- Complimentary infant pack (includes cot/travel cot, bed guard, highchair, bottle steriliser, baby bath, non-slip bath mat, potty, excludes baby-gate)
- Car seats and booster seats can be provided at a supplement, subject to availability
- To pre-book any of our family extras please call 020 8392 5747
Location
- Climati beach 7min drive
- Micro Nisi 7min drive
- Nearest taverna (Micro Nisi) 7min drive
- Mini market 7min drive
- Agios Nikolaos 10min drive
- Makris Gialos beach 10min drive
- Village (Ano Volimes) 15min drive
- Zakynthos town 50min drive
- Zakynthos International airport 50min drive
Car hire
Car options
When you book a flight-inclusive package holiday, the following hire car(s) are included in the price of your holiday:
- 2-3 guests – 1 Group C, Suzuki Ignis or similar*
- 4-5 guests – 1 Group D, Ford Focus or similar*
- 6 guests – 2 Group C, Suzuki Ignis or similar*
* All our cars include full comprehensive insurance with no excess charge. Please note that damage to the undercarriage, wing mirrors, windscreen and tyres is not covered by insurance.
Car specification
Group C – 1.3 litre engine, 1 large and 1 medium suitcase*
Group D –2 large suitcases and 1 medium case*
The following cars are available as alternatives on request (supplements apply). Please call our travel specialists for details.
Group K – Automatic Suzuki Baleno or similar, 1.2 -1.4 litre engine, 2 large and 1 medium suitcases*
Group K1 – Automatic Octavia Skoda or similar, 1.4 -1.6 litre engine, 2 large and 2 medium suitcases*
Group W – Minibus 6-7 seater or similar, 1.6 litre engine, 1 large and 1 small suitcases*
Group W1 – Minibus 9 seater or similar, 2.0 litre engine, 3 large and 2 small suitcases*
*Suitcase sizes are based on a large suitcase being approximately 75cm x 41cm x 31cm, a medium suitcase of approximately 65cm x 46cm x 29cm and a small suitcase of 55cm x 40cm x 20cm.
Edgar Allen Poe described Zakynthos as 'the flower of the Levante' and today, nearly 200 years later, this multi-faceted destination remains among the least developed of the larger Greek islands. The north in particular retains a timeless feel, thanks in part to its more rugged landscape that makes travel a little slower but infinitely more rewarding. There’s beauty and drama in towering cliffs and forest-clad mountains, but also hours of family fun on golden sandy beaches. From sleepy Agios Nikolaos in the north to the vibrant capital Zakynthos Town, you’ll find luxury villas and romantic honeymoon suites in some of the island’s most idyllic locations.
Location
- Climati beach 7min drive
- Micro Nisi 7min drive
- Nearest taverna (Micro Nisi) 7min drive
- Mini market 7min drive
- Agios Nikolaos 10min drive
- Makris Gialos beach 10min drive
- Village (Ano Volimes) 15min drive
- Zakynthos town 50min drive
- Zakynthos International airport 50min drive
View holiday Booking Information
 
         
                         
                         
                         
                         
                         
                         
                             
                     
     
     
                     
     
                     
                     
                    