At a glance
- Sleeps 6
- 4 bedrooms
- 3 bathrooms
- Free WiFi
- Air conditioning
Property highlights
- Beachside house
- Beautifully furnished
- Steps to beach
- Tavernas 2-minute walk
Kaminaki is a traditional Corfiot seaside village with steps and narrow lanes, cottages and balconies clustered almost on top of each other. A pretty and unspoiled pebble beach adds to its timeless charm. Tucked away at one end of this beach, The Boat House combines tradition and modern style to provide the perfect experience of beachside living, as well as a subtly luxurious and comfortable hideaway.
The position is unparalleled – this is a glorious stretch of coast – and it is hard to imagine anything more relaxing than sitting on the terrace with a glass of wine and nothing between you and the blue-green sea but a short flight of steps. To one side a tree-shaded rocky outcrop provides a cool spot to read or sleep the day away, to the other the beach curves towards the cottages and small tavernas of Kaminaki.
The English owners have furnished The Boat House imaginatively with a mixture of the best modern furnishings, paintings and photographs plus some antiques, against a colour scheme which takes from the palette of the sea. Through a glass porthole in the floor of the exceptionally well-equipped kitchen, an old fishing boat can be seen below – a visual reminder of the inspiration for this unique house.
Explore our pre-bookable experiences in Corfu
Jump to
Tourist tax
In Greece, a tourist tax may apply at your accommodation which will be payable locally, in cash, during the course of your holiday. Please use the link to view details specific to your accommodation. View tourist tax rates here.
Villa barbecues
Many of our villas in Greece have a barbecue provided. However, use of barbecues may be restricted or prohibited during the main summer season in order to comply with local regulations.
* For further clarification on Facilities and Amenities, please view the 'Details' tab for each property or speak to one of our experienced sales consultants.
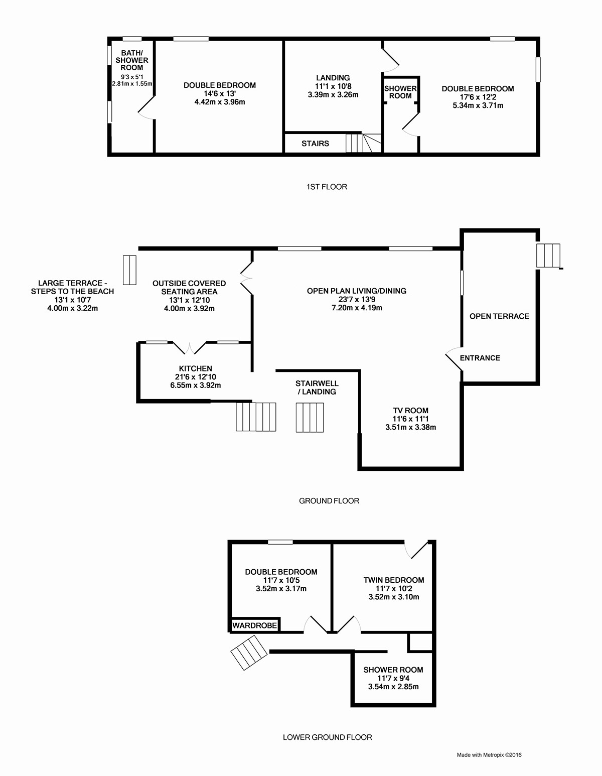
Accommodation
Layout
- 4 bedrooms (sleeps up to 6 maximum)
- Open plan living area, dining/TV room with DVD and CD players
- Modern kitchen includes hob, fridge-freezer with ice/cold water dispenser, drinks fridge, dishwasher
First floor
- 2 double bedrooms (1 with en-suite bathroom, 1 with en-suite shower room)
Lower ground floor
- Double bedroom and twin bedroom, shower room
General
- Complimentary wifi
- Air-conditioned bedrooms
- Iron, ironing board, hairdryer, bath and beach towels provided
- Washing machine
- Telephone for incoming calls only
- Safe
- Gas barbecue
- Steps onto beach in keeping with the character of this old village
- One of the Boat House's terraces is partly overlooked by another house but this is not intrusive
- No children under 5 years of age
- Local shopping delivery service available
- Private nanny service offering babysitting and full or half-day childcare packages. Please enquire for details.
Wifi
- All properties with wifi are able to support basic functionality such as web browsing and checking emails. We aim to offer an uninterrupted service but sometimes due to factors beyond our control reliability can be affected.
National tourist licence (EOT): 0829K10000264201
Location
- Located on Kaminaki Beach
- Tavernas on beach
- Boat hire/watersports on beach
- Bakery/supermarket (Nissaki) 5min drive
- Tennis courts 15min walk
- Corfu town and airport 45min drive
Car hire
Car options
When you book a flight-inclusive package holiday, the following hire car(s) are included in the price of your holiday:
- 2-3 guests – 1 Group C, Peugeot 208 or similar*
- 4 guests – 1 Group D, Peugeot 301 or similar*
- 5 guests – 1 Group L, Fiat Tipo or similar*
- 6 guests – 2 Group C, Peugeot 208 or similar*
* All our cars include comprehensive insurance with no excess charge. For this particular destination, the undercarriage, tyres, wing mirrors and windscreen are not included in the cover.
Car specification
Group C – 1.25 litre engine, 1 large and 1 medium suitcase*
Group D – 1.4 litre engine, 2 large and 1 medium suitcase*
Group L – 1.6 litre engine, 2 large and 2 medium suitcases*
The following cars are available as alternatives on request (supplements apply). Please call our travel specialists for details.
Group M – Fiat Tipo Station Wagon or similar, 1.2 litre engine, 3 large and 2 medium suitcases*
Group E1 – Automatic Citroën C3 or similar, 1.4 litre engine, 1 large and 1 medium suitcase*
Group E2 – Automatic Fiat Tipo or similar, 1.6 litre engine, 2 large and 2 medium suitcases*
Group J2 – Nissan Qashqai SUV or similar, 1.3 litre engine, 3 medium suitcases*
Group J3A – Automatic Ford Kuga SUV or similar, 1.5 litre engine, 3 medium suitcases*
Group F1 – Fiat Doblo 7 seater or similar, 1.6 litre engine, 2 large and 2 medium suitcases*
Group F2 – Fiat Talento 9 seater or similar, 1.5-2.0 litre engine, 3 large and 2 medium suitcases*
Group N – Mercedes Benz A160 or similar, 1.4 litre engine, 3 large suitcases*
* Suitcase sizes are based on a large suitcase being approximately 75cm x 41cm x 31cm, a medium suitcase of approximately 65cm x 46cm x 29cm and a small suitcase of 55cm x 40cm x 20cm.
Corfu holidays are a blissful mix of boats and beaches, set against a stunning backdrop of rugged mountains, silvery olive groves, picturesque harbours and jewel-coloured seas.
From tiny coves to vibrant Corfu Town, watersports fun to the mighty Mount Pantokrator, Corfu holidays can be active or utterly relaxed, simple or quietly sophisticated. Follow in the footsteps of gods and goddesses, Phoenicians and Venetians and the delightful Durrells to discover an island playground that appeals to all ages.
We offer holidays in all the most sought-after corners of Corfu, including Agios Stephanos, Kassiopi and around the beaches of Avlaki and Kerasia.
![]()
Explore our pre-bookable experiences in Corfu
Location
- Located on Kaminaki Beach
- Tavernas on beach
- Boat hire/watersports on beach
- Bakery/supermarket (Nissaki) 5min drive
- Tennis courts 15min walk
- Corfu town and airport 45min drive
View holiday Booking Information