At a glance
- Sleeps 8
- 4 bedrooms
- 4 bathrooms
- Free WiFi
- Air conditioning
- Swimming pool
Property highlights
- Immaculate contemporary villa
- Glorious Basque countryside views
- Games room
- Beautiful heated swimming pool
- Full air-conditioning
Villa Souraïde sits cocooned in landscaped gardens and surrounded by rolling countryside, a peaceful retreat in the green heart of the Pays Basque. From the outside, the half-timbered house looks perfectly at home in its rural setting, but once inside, Souraïde reveals its immaculate contemporary design, the result of a skilful renovation that has created one of the most impressive properties in the area. With glorious views towards the Pyrénées, plus local shops and a great village restaurant nearby, the position is equally hard to beat.
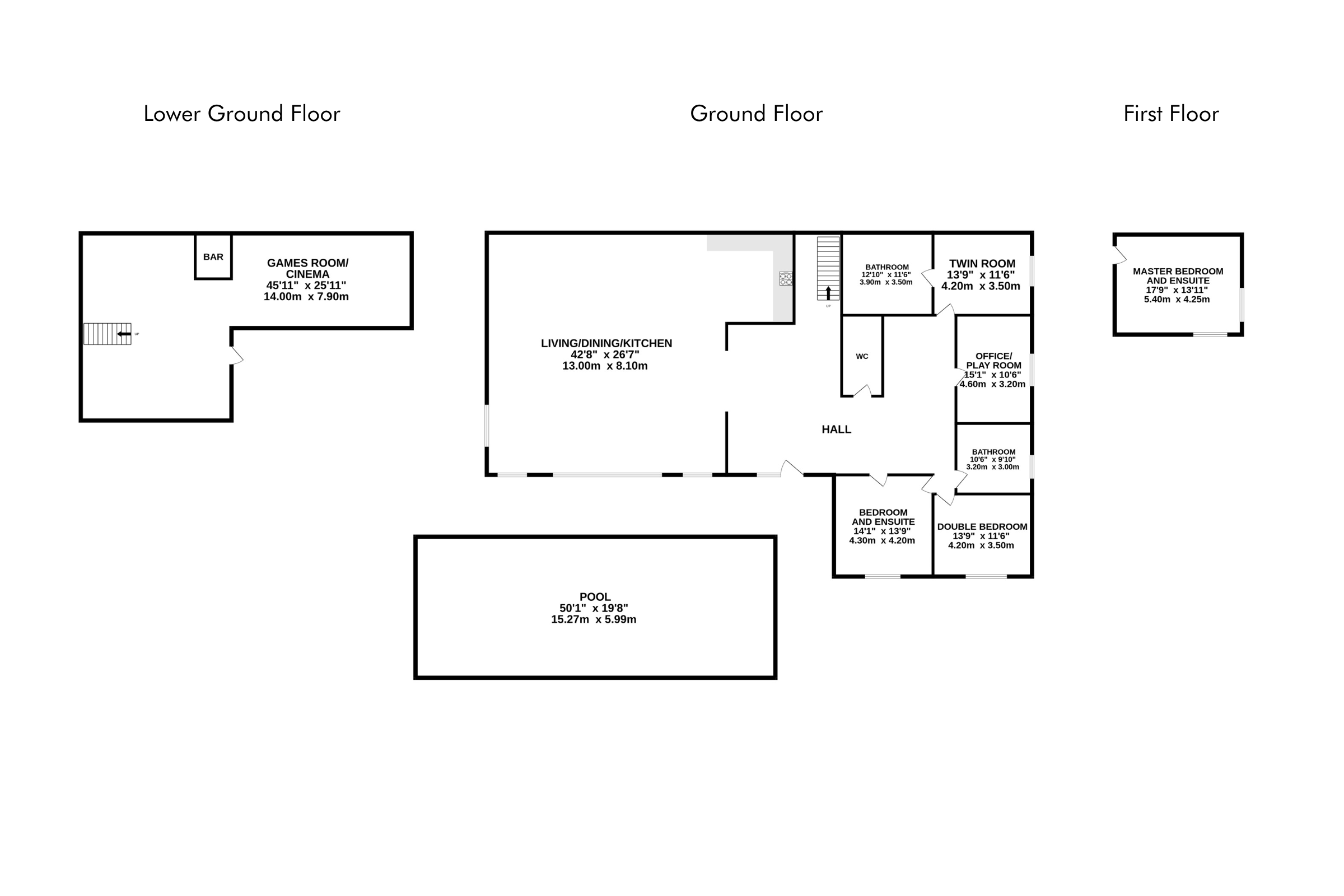
The villa extends over three levels, centred around a huge, open-plan living/dining/kitchen area. Three of the four bedrooms also occupy the ground floor, whilst the first floor is given over to a superb master suite. We love the thoughtful use of space here, which includes a playroom next to the children’s twin room, and a small upstairs office should you need to work for an hour or two, or perhaps just feel inspired to write by the beauty of the location. It’s hard to resist the pull of the villa’s beautiful, flower-filled gardens however, with a large infinity pool and plenty of seating options for sun and shade.
The entire lower ground floor is best described as a leisure suite, with everything you need to relax with friends and family. From the home cinema to the bar and the pool table, this is a perfect den for grown-ups where you can chat, relax and take a well-deserved break from day-to-day life for a while.
The local area
The nearest local facilities are found three kilometres away in Souraïde, a typically Basque village with basic shops, a couple of hotel restaurants and a nicely uncrowded little golf course. The thermal spa town of Cambo-les-Bains is a ten-minute drive; here you’ll find a good choice of restaurants, shops, tennis courts and spa facilities as well as the Villa Arnanga, the former home of Edmond Rostand, author of Cyrano de Bergerac. The coastal resorts of Biarritz and St-Jean-de-Luz are half an hour in the car.
Days out
Historic Biarritz offers an eclectic combination of sophistication, elegance and surf culture, blessed with magnificent beaches and outstanding golf and spa facilities, plus plenty of family attractions. St-Jean-de-Luz is a fishing-port-turned-holiday-town, known as the gourmet centre for Basque cuisine, with a rich cultural calendar, stylish shops and lovely beaches. A day tour of the Basque villages such as Ascain, Ainhoa, Sare and Espelette makes for a pleasing contrast to the coast; for something different again, don’t miss a trip into Spain and the old town of Hondarrabia or the celebrated cities of San Sebastian, Pamplona and Bilbao, home to the famous Guggenheim museum. Bayonne, capital of the Pays Basque, sits quietly under the tourist radar but rewards visitors with narrow medieval streets and a fine Gothic cathedral, not to mention of course its eponymous jambon. Some of southern Europe’s most majestic mountains are accessible in the Pyrénées National Park, home to countless hiking trails including the famous coast-to-coast GR10. Patience might reward you with the sight of an eagle or a pack of wild horses, and the bird life is rich and varied. Thrill-seekers can get their adrenalin shots white-water rafting, climbing, mountain biking or paragliding.
Explore our pre-bookable experiences in Aquitaine
Jump to
An in-villa chef and meal delivery service is available by arrangement at all our French villas
* For further clarification on Facilities and Amenities, please view the 'Details' tab for each property or speak to one of our experienced sales consultants.
Accommodation
Layout
- 4 bedroom villa (sleeps 2-8)
Ground floor
- Open-plan living/dining/kitchen area with fireplace, TV and DVD player, access to terrace
- Fully-equipped kitchen with oven, hob, microwave, coffee-maker, fridge-freezer, dishwasher
- Double bedroom (king-size bed) with en-suite shower room and WC
- Double bedroom (160cm bed) with en-suite bathroom (no WC)
- Twin bedroom with en-suite shower room with WC
- Home office/small extra seating area with sofa
- WC
First floor
- Master bedroom (queen-size bed) with TV and en-suite bathroom
- WC
Lower floor
- Home cinema with large screen
- Contemporary-style bar with stools
- Pool table
- Shower and WC
- Wine cellar
- Utility room with washing machine and dryer
General
- Simpson Travel telephone representative
- Complimentary WiFi
- Air conditioning in all bedrooms and living room
- Iron, ironing board, hairdryer and pool towels provided
- Highchair and cot available (linen not provided)
- Smoking is not permitted in the villa
- Pets are not permitted
- South and west facing terrace with covered area
- Side garden with children's swing
- Private heated swimming pool 5m x 10m, Roman steps, alarm
- Private parking spaces
- Nearby activities include golf, cycling, horse riding, birdwatching, spa and thalassotherapy, hiking, mountain biking, leisure lake, surfing
- For further information on Terms and Conditions specific to this French property please click here
WiFi
- All properties with WiFi are able to support basic functionality such as web browsing and checking emails*
* We aim to offer an uninterrupted service but sometimes due to factors beyond our control reliability can be affected.
Villa access times
- Check-in time – 5.00-7.00pm
- Check-out time – 10.00am
Services
- Weekly change of linen, bath and pool towels for bookings of two weeks or more
- Mid-stay cleaning (for bookings of two weeks)
Optional service offered
- Chef (pre-booking essential)
- All extra services payable locally
- Prices quoted are subject to change
Getting there
- Airports 
 Biarritz 21km
 Bilbao 153km
 Bordeaux 204km
- Ferry ports 
 Santander 248km
 St Malo 736km
 Calais 1,072km
Location
- Golf course 3min drive (2km)
- Boulangerie/restaurant/butcher (Souraïde) 5min drive (3km)
- Aquazone water park 6min drive (4km)
- Cambo-les-Bains 10min drive (10km)
- Beach (Bidart) 25min drive (16km)
- St-Jean-de-Luz 30min drive (20km)
- Biarritz 30min drive (22km)
Flights
This property is priced on an accommodation-only basis, but we are happy to arrange flights for you if required. Please contact us for assistance. For information on ferry routes, please visit our France Travel page.
Car hire
We are happy to arrange your car hire in France; please click here to view options and prices. All hire cars booked with us include:
- Fully inclusive insurance, with zero excess*
- One free additional driver
*for full insurance details, please refer to the France car hire page.
Steeped in Basque traditions as old as the hills, this destination reflects a very different take on ‘Frenchness’: one that’s also imbued with the colours of Spain just a short drive away. And if swimming, sunbathing, surfing and sandy beaches don’t appeal, you can try a thalassotherapy spa session, watch an adrenaline-fuelled game of Basque pelote or flex your cultural muscle along the narrow streets of ancient towns and pristine villages where museums, galleries and restaurants are in plentiful supply.
Visit our collection of handpicked villas or boutique hotels in Biarritz & The Basque Country to complete your luxury holiday on the Aquitaine Coast.
Location
- Golf course 3min drive (2km)
- Boulangerie/restaurant/butcher (Souraïde) 5min drive (3km)
- Aquazone water park 6min drive (4km)
- Cambo-les-Bains 10min drive (10km)
- Beach (Bidart) 25min drive (16km)
- St-Jean-de-Luz 30min drive (20km)
- Biarritz 30min drive (22km)
View holiday Booking Information
 
        
 
                         
                         
                         
                         
                         
                         
                             
                             
                             
                             
                             
                             
                     
     
     
                     
     
                     
                     
                    